Beschrijving

Heerlijk lichte en ruime 5-kamer benedenwoning met tuin(ZW) op fijne lokatie, fundering vernieuwd!

Dit fijne vijfkamerappartement op de begane grond met souterrain en heerlijke zonnige tuin aan de achterzijde is perfect voor samenwoners of een gezin dat wil genieten van de bruisende stad Rotterdam en wil wonen aan de rond van de stad nabij de uitvalswegen.
Hier heb je een fijne eigen stek op een heerlijke plek.  Deze dubbele benedenwoning werd in 2024 geheel gemoderniseerd. Je kunt hier zonder iets op te hoeven knappen direct gaan wonen. 
In 2023 is de fundering onder het pand geheel vernieuwd en het ligt op eigen grond!
Met een VvE-bijdrage van circa € 147 per maand en de mogelijkheid van een zeer snelle oplevering is dit een kans die je niet wilt missen!

De gezellige wijk Oude Noorden biedt je het beste van twee werelden: hier vind je de rust van een groene, statige straat en de bruisende stad op een steenworp afstand. Loop naar je favoriete koffiebar, doe je boodschappen om de hoek, of geniet van de vele gezellige straatjes die Rotterdam rijk is. De snelweg is een mum van tijd te bereiken.

Direct na binnenkomst valt op hoe nieuw, licht en ruim de woning is. Op de begane grond vind je de woonkamer met luxe open keuken aan de achterzijde. Vanuit de woonkamer kijk je op de verdiepte achtergelegen tuin. Aan de voorzijde vind je de ruime slaapkamer met aangrenzend de ruim opgezette badkamer met ligbad, inloopdouche en wastafel.
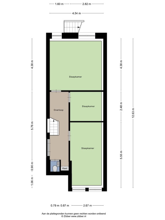
De benedenverdieping is voorzien van slaapkamers aan voor- en achterzijde en een tussenkamer, perfect als werk-, baby- en/of logeerkamer. Op deze slaapverdieping heb je een tweede toilet.

Zie jij jezelf hier al wonen? Reageer vandaag nog via Funda voor een bezichtiging en laat je verrassen door de charme en de ligging van dit fijne appartement. 
Jullie nieuwe avontuur begint hier! 

Voor de exacte indeling en afmetingen kunnen jullie de plattegronden raadplegen.

Kenmerken: 
- Bouwjaar 1909 
- Funderingherstel 2023 door Brefu
- Geheel gemoderniseerd 2024
- Buitenschilderwerk 2024
- Vijfkamerappartement op begane grond en souterrain
- Tuin op het zuidwesten
- Woonoppervlakte ca. 109 m2 
- Energielabel A
- Volledig voorzien van dubbel glas
- Gezellige, levendige omgeving
- Ouderdomsclausule van toepassing
- Niet-zelfbewoningsclausule
- VvE bijdrage € 147,70 per maand
- Vraagprijs € 599.000
- Oplevering in overleg, kan snel

Wij handelen alle bezichtigingsaanvragen af op volgorde van binnenkomst via Funda. Daarom adviseren wij u om bij interesse direct via Funda een aanvraag voor een bezichtiging te doen.
 
BOS Makelaardij is de Vastgoed Nederland-makelaar van de verkoper. Wij adviseren u uw eigen makelaar in te schakelen om uw belangen te behartigen bij de aankoop van deze woning. Vraag uw aankoopmakelaar om mee te gaan bij uw bezichtiging, want voor een tweede bezichtiging is door de huidige vraagdruk vaak geen mogelijkheid.

Alle verstrekte informatie moet beschouwd worden als een uitnodiging tot het doen van een bod of om in onderhandeling te treden. Er kunnen geen rechten worden ontleend aan deze woninginformatie.

Kenmerken