Beschrijving
Wonen met licht, lucht en ruimte
Dillenburgstraat 14 – Eiland van Feijenoord, Rotterdam
Sommige woningen voelen meteen goed. Door het licht. Door de ruimte. Door het heerlijke balkon. En door het uitzicht dat elke dag weer anders is.
Deze aantrekkelijke maisonnette op het Eiland van Feijenoord is zo’n plek — rustig gelegen, verrassend ruim (ca. 120 m²) en op slechts tien fietsminuten van het bruisende centrum van Rotterdam.
Gebouwd in 2006, uitstekend onderhouden, voorzien van energielabel B en zonnepanelen, biedt deze woning een comfortabele en duurzame woonbasis voor wie kwaliteit en leefplezier zoekt.
Licht, ruimte en comfort
Bij binnenkomst ervaar je direct de rust en het licht die deze woning kenmerken.
INDELING:
Begane grond
Verzorgde entree met intercom, hal met meterkast en een brede trapopgang naar de woonverdieping.
Eerste verdieping (woonetage)
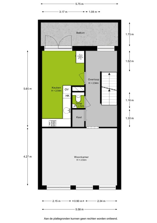
Ruime hal met modern toilet en fonteintje en praktische bergruimte. De lichte en royale living aan de voorzijde met uitzicht op de Nieuwe Maas is voorzien van grote raampartijen en een nette laminaatvloer.
Aan de achterzijde bevindt zich de woonkeuken met openslaande deuren naar het zonnige balkon (zuidoost). Hier geniet je van het buitenleven — van een rustige ochtendkoffie tot lange zomeravonden. Het balkon is fraai afgewerkt met vlonders en lichte plavuizen.
De keuken is uitgerust met diverse inbouwapparatuur, waaronder een 4-pits gasfornuis, brede afzuigkap, combi-oven, vaatwasser.
Tweede verdieping (slaapverdieping)
Overloop met toegang tot drie volwaardige slaapkamers — ideaal voor een gezin, werken aan huis of logees.
Daarnaast een moderne badkamer, een tweede toilet en een praktische technische ruimte met witgoedaansluitingen, CV-opstelling en WTW-installatie.
Buitenruimte en berging
Op het afgesloten achterterrein bevindt zich een royale externe berging op de begane grond.
Op het balkon ervaar je rust, zon en ruimte, midden in de stad.
LOCATIE:
Het Eiland van Feijenoord – stedelijk, groen en verbonden
Wonen op het Eiland van Feijenoord betekent wonen in een wijk met karakter en een sterke community. De charmante haven met drijvende woningen, brede straten en spontane buurtinitiatieven zorgen voor een dorpse sfeer in de stad.
Langs de kade van de Nieuwe Maas wandel je zo richting het water, met uitzicht op passerende schepen, watertaxi’s en indrukwekkende zonsondergangen.
De wijk blijft zich ontwikkelen en groeit in aantrekkingskracht, onder andere door projecten als De Kaai en de ontwikkelingen rond de Piekstraat.
Alles dichtbij
De ligging is ideaal: het centrum, de Kop van Zuid, universiteit, ziekenhuizen en uitvalswegen zijn snel bereikbaar. Openbaar vervoer, watertaxi, horeca en voorzieningen zoals de Jumbo supermarkt, bevinden zich op loopafstand.
Kenmerken
• Ruime 5-kamer maisonnette (ca. 120 m²)
• Bouwjaar 2006
• Zonnig balkon (ZO)
• Drie volwaardige slaapkamers
• Volledig geïsoleerd (hardhouten kozijnen + HR-glas), Energielabel B
• Schilderwerk uitgevoerd in 2024
• 4 zonnepanelen (2024)
• CV-combiketel (2018)
• Keukenapparatuur (2021)
• Warmteterugwininstallatie
• Externe berging ca. 6 m²
• Actieve en professioneel beheerde VvE (€ 150,42 per maand)
• Erfpacht tot 16 mei 2105, canon € 180,25 per maand (fiscaal aftrekbaar, vastgezet)
• Oplevering in overleg
• Vraagprijs: € 425.000 k.k.
Ervaring van de bewoners
“Wij hebben hier 8 jaar lang heerlijk gewoond. Elke dag wandelen langs de Maas, genieten van de levendigheid van het water en ontspannen op het balkon met een drankje of barbecue. Een fijn huis met ruimte en mogelijkheden, op een stoere, echte Rotterdamse plek.”
Tot slot
Dillenburgstraat 14 is een woning die je moet ervaren. Het licht, de ruimte en de rust maken hier echt het verschil.
Zie jij jezelf hier wonen?
Vraag dan direct via FUNDA een bezichtiging aan — wij plannen op volgorde van binnenkomst.
Aanvullende informatie
BOS Makelaardij is Vastgoed Nederland-makelaar van de verkoper. Wij adviseren kopers hun eigen makelaar in te schakelen. Aan deze informatie kunnen geen rechten worden ontleend.
Toelichting erfpacht
De erfpachtcanon is vastgezet en bedraagt € 180,25 per maand (fiscaal aftrekbaar).
Plattegronden
Dillenburgstraat 14 - 1e verdieping - 2D.jpg
Dillenburgstraat 14 - 2e verdieping - 2D.jpg
Dillenburgstraat 14 - 3e verdieping - 2D.jpg
Dillenburgstraat 14 - Begane grond - 2D.jpg
Dillenburgstraat 14 - Berging - 2D.jpg