Met een eigen account kun je panden volgen, opslaan als favoriet, je zoekprofiel opslaan en jouw eigen notities bij een huis maken.
Verkocht onder voorbehoud: Modern, luxe en ruim gezinshuis met forse tuin in Bleiswijk
Ockenburghof 9, 2665 GT Bleiswijk
€ 869.000,- k.k.
| Type object | Woonhuis, eengezinswoning, geschakelde woning, hofjeswoning |
|---|---|
| Woonoppervlakte | 161,3 m² |
| Status | Verkocht onder voorbehoud |
| Perceeloppervlakte | 241 m² |
|---|---|
| Aanvaarding | In overleg |
Beschrijving
Modern, luxe en ruim gezinshuis met forse tuin in Bleiswijk
Heb je altijd al gedroomd van een luxe gezinswoning op een fijne, rustige plek in Bleiswijk? Maak dan zeker even tijd om dit huis te ontdekken! Aan de Ockenburghof 9 vind je een geschakelde, energiezuinige eengezinswoning (bouwjaar 2018) waarbij aan werkelijk alles is gedacht. Hier woon je modern, comfortabel en met alle ruimte voor jou en je gezin om samen mooie herinneringen te maken.
Met een perceeloppervlakte van maar liefst 241 m2 kun je hier werkelijk alle kanten op. Denk maar eens aan een zomerse barbecue in de diepe achtertuin, terwijl de kinderen spelen op het gras. Of lekker met je kop koffie in de voortuin, waar je uitkijkt op de rustige straat. Parkeerproblemen? Die zijn er gewoonweg niet – je eigen parkeerplaats op eigen terrein biedt uitkomst. Handig!
Omdat deze woning in 2018 gebouwd is, is echt alles nog fris en modern, zowel binnen als buiten. Je hoeft dus nauwelijks iets te klussen voordat je erin kunt trekken. En over energiezuinigheid hoef je je ook geen zorgen te maken – het keurige energielabel A zorgt ervoor dat je woning toekomstbestendig en comfortabel is, zonder verrassingen op je energierekening.
Van de vloeren tot de keuken, alles ademt luxe en kwaliteit. Denk aan ruime, lichte kamers, strak afgewerkte wanden en plafonds, moderne (open) keuken met alle wenselijke inbouwapparatuur én slimme indelingen die perfect aansluiten bij wat een jong gezin nodig heeft. Speelruimte voor de kids, genoeg opbergmogelijkheden, en boven slapen jullie allemaal lekker rustig.
Bleiswijk is niet voor niets razend populair bij jonge gezinnen. Hier woon je in een fijne wijk met een gemoedelijke sfeer en volop speelgelegenheden om de hoek. Scholen, sportclubs, winkels en het prachtige recreatiegebied zijn allemaal gemakkelijk bereikbaar. Pak je graag de fiets richting Rottemeren voor een frisse neus? Dat kan binnen no-time!
Dit is zo’n woning waar je bij binnenkomst meteen denkt: ja, dit is het. Het ruime perceel, de luxe uitstraling, het moderne comfort en een heerlijke gezinsomgeving maken het plaatje compleet. Hier zie je jezelf al zitten aan de keukentafel, de kinderen spelend in de tuin, samen genieten van lange zomeravonden op het terras.
Kortom: zoek je een royaal, luxe en energiezuinig gezinshuis in een van de leukste wijken van Bleiswijk? Dan is Ockenburghof 9 absoluut het bezichtigen waard. Zet je verhuisplannen in gang, neem snel contact met ons op en ontdek zelf hoe fijn je hier kunt wonen! Je wilt deze kans echt niet laten lopen.
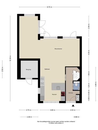
Voor de exacte indeling en afmetingen kunnen jullie de plattegronden raadplegen.
Kenmerken:
- Geschakelde eengezinswoning
- Instapklaar
- Bouwjaar2018
- Zowel voor- als achtertuin, plus parkeerplaats voor de deur
- Zeer ruime speelse woonkamer, complete keuken, twee badkamers, vijf slaapkamers
- Ideaal voor jonge gezinnen of samenwoners
- Perceel: 241 m2
- Energielabel A
- Bijzonder luxe afwerking
- Woonoppervlakte ruim 160 m2
- Luxe badkamer met stoomdouche
- Warmtepomp, zonnepanelen, vloerverwarming
- Dubbelglas
- Vraagprijs € 869.000 k.k.
- Oplevering in overleg
Hebben jullie interesse in dit mooie huis? Bel ons dan om een bezichtiging te doen, 010-7613749.
BOS Makelaardij is de Vastgoed Nederland makelaar van de verkoper. Wij adviseren u uw eigen makelaar in te schakelen om uw belangen te behartigen bij de aankoop van deze woning. Vraag uw aankoopmakelaar om mee te gaan bij uw bezichtiging, want voor een tweede bezichtiging is door de huidige vraagdruk soms geen mogelijkheid.
Heb je altijd al gedroomd van een luxe gezinswoning op een fijne, rustige plek in Bleiswijk? Maak dan zeker even tijd om dit huis te ontdekken! Aan de Ockenburghof 9 vind je een geschakelde, energiezuinige eengezinswoning (bouwjaar 2018) waarbij aan werkelijk alles is gedacht. Hier woon je modern, comfortabel en met alle ruimte voor jou en je gezin om samen mooie herinneringen te maken.
Met een perceeloppervlakte van maar liefst 241 m2 kun je hier werkelijk alle kanten op. Denk maar eens aan een zomerse barbecue in de diepe achtertuin, terwijl de kinderen spelen op het gras. Of lekker met je kop koffie in de voortuin, waar je uitkijkt op de rustige straat. Parkeerproblemen? Die zijn er gewoonweg niet – je eigen parkeerplaats op eigen terrein biedt uitkomst. Handig!
Omdat deze woning in 2018 gebouwd is, is echt alles nog fris en modern, zowel binnen als buiten. Je hoeft dus nauwelijks iets te klussen voordat je erin kunt trekken. En over energiezuinigheid hoef je je ook geen zorgen te maken – het keurige energielabel A zorgt ervoor dat je woning toekomstbestendig en comfortabel is, zonder verrassingen op je energierekening.
Van de vloeren tot de keuken, alles ademt luxe en kwaliteit. Denk aan ruime, lichte kamers, strak afgewerkte wanden en plafonds, moderne (open) keuken met alle wenselijke inbouwapparatuur én slimme indelingen die perfect aansluiten bij wat een jong gezin nodig heeft. Speelruimte voor de kids, genoeg opbergmogelijkheden, en boven slapen jullie allemaal lekker rustig.
Bleiswijk is niet voor niets razend populair bij jonge gezinnen. Hier woon je in een fijne wijk met een gemoedelijke sfeer en volop speelgelegenheden om de hoek. Scholen, sportclubs, winkels en het prachtige recreatiegebied zijn allemaal gemakkelijk bereikbaar. Pak je graag de fiets richting Rottemeren voor een frisse neus? Dat kan binnen no-time!
Dit is zo’n woning waar je bij binnenkomst meteen denkt: ja, dit is het. Het ruime perceel, de luxe uitstraling, het moderne comfort en een heerlijke gezinsomgeving maken het plaatje compleet. Hier zie je jezelf al zitten aan de keukentafel, de kinderen spelend in de tuin, samen genieten van lange zomeravonden op het terras.
Kortom: zoek je een royaal, luxe en energiezuinig gezinshuis in een van de leukste wijken van Bleiswijk? Dan is Ockenburghof 9 absoluut het bezichtigen waard. Zet je verhuisplannen in gang, neem snel contact met ons op en ontdek zelf hoe fijn je hier kunt wonen! Je wilt deze kans echt niet laten lopen.
Voor de exacte indeling en afmetingen kunnen jullie de plattegronden raadplegen.
Kenmerken:
- Geschakelde eengezinswoning
- Instapklaar
- Bouwjaar2018
- Zowel voor- als achtertuin, plus parkeerplaats voor de deur
- Zeer ruime speelse woonkamer, complete keuken, twee badkamers, vijf slaapkamers
- Ideaal voor jonge gezinnen of samenwoners
- Perceel: 241 m2
- Energielabel A
- Bijzonder luxe afwerking
- Woonoppervlakte ruim 160 m2
- Luxe badkamer met stoomdouche
- Warmtepomp, zonnepanelen, vloerverwarming
- Dubbelglas
- Vraagprijs € 869.000 k.k.
- Oplevering in overleg
Hebben jullie interesse in dit mooie huis? Bel ons dan om een bezichtiging te doen, 010-7613749.
BOS Makelaardij is de Vastgoed Nederland makelaar van de verkoper. Wij adviseren u uw eigen makelaar in te schakelen om uw belangen te behartigen bij de aankoop van deze woning. Vraag uw aankoopmakelaar om mee te gaan bij uw bezichtiging, want voor een tweede bezichtiging is door de huidige vraagdruk soms geen mogelijkheid.
Kenmerken
| Overdracht | |
|---|---|
| Referentienummer | 00278 |
| Vraagprijs | € 869.000,- k.k. |
| Elektra | € 26,- |
| Water | € 30,- |
| Status | Verkocht onder voorbehoud |
| Aanvaarding | In overleg |
| Aangeboden sinds | Dinsdag 21 oktober 2025 |
| Laatste wijziging | Dinsdag 31 maart 2026 |
| Bouw | |
|---|---|
| Type object | Woonhuis, eengezinswoning, geschakelde woning, hofjeswoning |
| Soort bouw | Bestaande bouw |
| Bouwperiode | 2018 |
| Dakbedekking | Bitumen Dakpannen |
| Type dak | Samengesteld |
| Isolatievormen | Dakisolatie Driedubbel glas Dubbel glas Vloerisolatie |
| Oppervlaktes en inhoud | |
|---|---|
| Perceeloppervlakte | 241 m² |
| Woonoppervlakte | 161,3 m² |
| Keukenoppervlakte | 17,64 m² |
| Inhoud | 571 m³ |
| Oppervlakte externe bergruimte | 6,3 m² |
| Indeling | |
|---|---|
| Aantal bouwlagen | 3 |
| Aantal kamers | 6 (waarvan 5 slaapkamers) |
| Aantal badkamers | 2 (en 2 aparte toiletten) |
| Locatie | |
|---|---|
| Ligging | Aan water In woonwijk Vrij uitzicht |
| Tuin | |
|---|---|
| Type | Achtertuin |
| Hoofdtuin | Ja |
| Oriëntering | West |
| Staat | Prachtig aangelegd |
| Tuin 2 - Type | Voortuin |
| Tuin 2 - Oriëntering | Oosten |
| Tuin 2 - Staat | Normaal |
| Energieverbruik | |
|---|---|
| Energielabel | A |
| Uitrusting | |
|---|---|
| Warm water | Elektrische boiler |
| Verwarmingssysteem | Vloerverwarming Warmtepomp |
| Ventilatie methode | Mechanische ventilatie |
| Keukenvoorzieningen | Inbouwapparatuur Spoeleiland |
| Badkamervoorzieningen Badkamer 1 | Douche Dubbele wastafel Stoomcabine Wastafelmeubel |
| Badkamervoorzieningen Badkamer 2 | Douche Wasmachineaansluiting Wastafel |
| Glasvezelaansluiting aanwezig | Ja |
| Tuin aanwezig | Ja |
| Beschikt over een internetverbinding | Ja |
| Heeft schuur/berging | Ja |
| Heeft een stoomcabine | Ja |
| Heeft zonnepanelen | Ja |
| Heeft ventilatie | Ja |
| Kadastrale gegevens | |
|---|---|
| Kadastrale aanduiding | Bleiswijk C 7775 |
| Perceeloppervlakte | 241 m² |
| Omvang | Geheel perceel |
| Eigendomsituatie | Eigen grond |