Met een eigen account kun je panden volgen, opslaan als favoriet, je zoekprofiel opslaan en jouw eigen notities bij een huis maken.
Te koop: Bergselaan 384D, 3038 CT Rotterdam
€ 380.000,- k.k.
| Type object | Appartement, bovenwoning |
|---|---|
| Aanvaarding | In overleg |
| Woonoppervlakte | 94,8 m² |
|---|
Beschrijving
Laat je verrassen door de vibes van Blijdorp!
Ben je klaar voor het volgende hoofdstuk in jouw woonavontuur? Zoek je dat unieke plekje midden in de stad, waar je alle ruimte hebt om te groeien, relaxen én te genieten? Nou, dan hebben wij hier iets bijzonders voor je. Welkom bij Bergselaan 384-D: een heerlijk ruim bovenhuis op anderhalve verdieping, helemaal klaar voor een nieuw verhaal.
De gehanteerde vraagprijs is een vanaf-prijs!
Deze wijk is booming, vol leuke koffietentjes, gezellige boetieks en natuurlijk de wereldberoemde Rotterdamse dierentuin om de hoek (altijd leuk met kids, of gewoon voor jezelf). En ja, al die hotspots van het stadscentrum? Die heb je binnen handbereik – spring op de fiets en je bent er zó.
Dit bovenhuis uit 1934 maar helemaal van nu qua sfeer, trakteert je op een zee aan ruimte. Met z’n anderhalve verdieping is er plek zat voor jou, je vrienden, een home office of misschien zelfs een begin van een gezinsuitbreiding. Hoe je het ook inricht, je krijgt dat echte ruimtelijke gevoel, maar ook jaren 30 knus.
Zeg nou zelf, op een zonnige dag wil je gewoon relaxen met een drankje op je eigen balkon. Bergselaan 384-D geeft je precies dát en dan nog op het zuiden ook. Of je nu gaat voor een yogasessie in de ochtendzon, barbecueën tijdens zwoele zomeravonden, of even bijkletsen na een lange werkdag: dit is jouw eigen zonnige stek waar elke dag voelt als vakantie.
Toe aan een weekendje weg of moet je snel richting werk? Via de uitvalswegen ben je zó op de snelweg. De OV-verbindingen zijn trouwens ook top, dus je hoeft eigenlijk nooit te stressen over vervoer. Of je nu werkt in het centrum, even naar vrienden buiten de stad wil, of een dagje naar zee plant, alles is tot je beschikking.
Je merkt het al: dit is het huis waar verschillende doelen samenkomen. Start je net op de woningmarkt? Wil je gaan samenwonen? Of zoekt je gezin ruimte zonder het stadsleven te hoeven missen? Alles kan, alles mag, want deze woning past zich moeiteloos aan jouw leven aan.
Dus, wil je centraal wonen in een levendige, jonge buurt? Houd je van ouderwetse charme en zie jij jezelf al helemaal settelen op dat zonnige balkon? Dan is Bergselaan 384-D absoluut je volgende stap.
Twijfel niet langer, kom gewoon even langs en voel waarom deze plek als thuiskomen voelt. Wie weet sta jij dan binnenkort met de sleutel in handen, klaar om je eigen verhaal te starten!
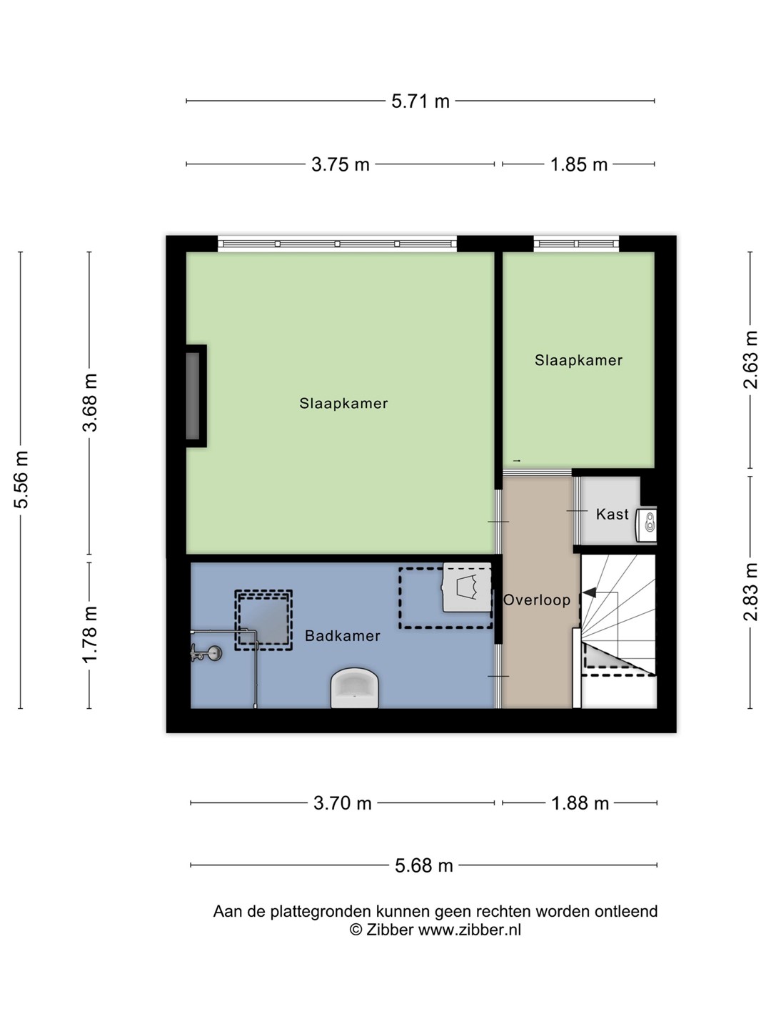
Voor de exacte indeling en afmetingen kunnen jullie de plattegronden raadplegen.
Kenmerken:
- Appartement op de tweede en halve vierde verdieping
- Ruime lichte woonkamer, drie slaapkamers
- Perfect voor starters, single of samen
- Middenin een gezellige, levendige wijk
- Woonoppervlakte circa 95 m2
- Balkon achterzijde (zuid)
- Energielabel C
- CV-ketel HR
- Alle dagelijkse voorzieningen op loopafstand
- Basisschool op 3 minuten loopafstand: Daltonschool De Margriet
- BSO en Van Maanenbad om de hoek
- Overdekt winkelcentrum om de andere hoek
- Bouwjaar 1934
- Ouderdomsclausule van toepassing
- VvE € 144 /mnd
- Vanafprijs is € 380.000
- Projectnotaris Kooijman Autar notarissen
- Oplevering in overleg, kan snel
Wij handelen alle bezichtigingsaanvragen af op volgorde van binnenkomst via Funda. Daarom adviseren wij jullie om bij interesse direct via Funda een aanvraag voor een bezichtiging te doen.
BOS Makelaardij is de Vastgoed Nederland makelaar van de verkoper. Wij adviseren u uw eigen makelaar in te schakelen om uw belangen te behartigen bij de aankoop van deze woning. Vraag uw aankoopmakelaar om mee te gaan bij uw bezichtiging, want voor een tweede bezichtiging is door de huidige vraagdruk soms geen mogelijkheid.
Ben je klaar voor het volgende hoofdstuk in jouw woonavontuur? Zoek je dat unieke plekje midden in de stad, waar je alle ruimte hebt om te groeien, relaxen én te genieten? Nou, dan hebben wij hier iets bijzonders voor je. Welkom bij Bergselaan 384-D: een heerlijk ruim bovenhuis op anderhalve verdieping, helemaal klaar voor een nieuw verhaal.
De gehanteerde vraagprijs is een vanaf-prijs!
Deze wijk is booming, vol leuke koffietentjes, gezellige boetieks en natuurlijk de wereldberoemde Rotterdamse dierentuin om de hoek (altijd leuk met kids, of gewoon voor jezelf). En ja, al die hotspots van het stadscentrum? Die heb je binnen handbereik – spring op de fiets en je bent er zó.
Dit bovenhuis uit 1934 maar helemaal van nu qua sfeer, trakteert je op een zee aan ruimte. Met z’n anderhalve verdieping is er plek zat voor jou, je vrienden, een home office of misschien zelfs een begin van een gezinsuitbreiding. Hoe je het ook inricht, je krijgt dat echte ruimtelijke gevoel, maar ook jaren 30 knus.
Zeg nou zelf, op een zonnige dag wil je gewoon relaxen met een drankje op je eigen balkon. Bergselaan 384-D geeft je precies dát en dan nog op het zuiden ook. Of je nu gaat voor een yogasessie in de ochtendzon, barbecueën tijdens zwoele zomeravonden, of even bijkletsen na een lange werkdag: dit is jouw eigen zonnige stek waar elke dag voelt als vakantie.
Toe aan een weekendje weg of moet je snel richting werk? Via de uitvalswegen ben je zó op de snelweg. De OV-verbindingen zijn trouwens ook top, dus je hoeft eigenlijk nooit te stressen over vervoer. Of je nu werkt in het centrum, even naar vrienden buiten de stad wil, of een dagje naar zee plant, alles is tot je beschikking.
Je merkt het al: dit is het huis waar verschillende doelen samenkomen. Start je net op de woningmarkt? Wil je gaan samenwonen? Of zoekt je gezin ruimte zonder het stadsleven te hoeven missen? Alles kan, alles mag, want deze woning past zich moeiteloos aan jouw leven aan.
Dus, wil je centraal wonen in een levendige, jonge buurt? Houd je van ouderwetse charme en zie jij jezelf al helemaal settelen op dat zonnige balkon? Dan is Bergselaan 384-D absoluut je volgende stap.
Twijfel niet langer, kom gewoon even langs en voel waarom deze plek als thuiskomen voelt. Wie weet sta jij dan binnenkort met de sleutel in handen, klaar om je eigen verhaal te starten!
Voor de exacte indeling en afmetingen kunnen jullie de plattegronden raadplegen.
Kenmerken:
- Appartement op de tweede en halve vierde verdieping
- Ruime lichte woonkamer, drie slaapkamers
- Perfect voor starters, single of samen
- Middenin een gezellige, levendige wijk
- Woonoppervlakte circa 95 m2
- Balkon achterzijde (zuid)
- Energielabel C
- CV-ketel HR
- Alle dagelijkse voorzieningen op loopafstand
- Basisschool op 3 minuten loopafstand: Daltonschool De Margriet
- BSO en Van Maanenbad om de hoek
- Overdekt winkelcentrum om de andere hoek
- Bouwjaar 1934
- Ouderdomsclausule van toepassing
- VvE € 144 /mnd
- Vanafprijs is € 380.000
- Projectnotaris Kooijman Autar notarissen
- Oplevering in overleg, kan snel
Wij handelen alle bezichtigingsaanvragen af op volgorde van binnenkomst via Funda. Daarom adviseren wij jullie om bij interesse direct via Funda een aanvraag voor een bezichtiging te doen.
BOS Makelaardij is de Vastgoed Nederland makelaar van de verkoper. Wij adviseren u uw eigen makelaar in te schakelen om uw belangen te behartigen bij de aankoop van deze woning. Vraag uw aankoopmakelaar om mee te gaan bij uw bezichtiging, want voor een tweede bezichtiging is door de huidige vraagdruk soms geen mogelijkheid.
Kenmerken
| Overdracht | |
|---|---|
| Referentienummer | 00270 |
| Vraagprijs | € 380.000,- k.k. |
| Servicekosten | € 144,21 |
| Inrichting | Niet gestoffeerd |
| Inrichting | Niet gemeubileerd |
| Aanvaarding | In overleg |
| Aangeboden sinds | Vrijdag 21 november 2025 |
| Laatste wijziging | Dinsdag 3 maart 2026 |
| Bouw | |
|---|---|
| Type object | Appartement, bovenwoning |
| Woonlaag | 3e woonlaag |
| Soort bouw | Bestaande bouw |
| Bouwperiode | 1934 |
| Dakbedekking | Bitumen |
| Type dak | Platdak |
| Oppervlaktes en inhoud | |
|---|---|
| Woonoppervlakte | 94,8 m² |
| Woonkameroppervlakte | 21,73 m² |
| Keukenoppervlakte | 4,89 m² |
| Inhoud | 313 m³ |
| Oppervlakte gebouwgebonden buitenruimte | 2,2 m² |
| Balkonoppervlakte | 2,55 m² |
| Indeling | |
|---|---|
| Aantal bouwlagen | 2 |
| Aantal kamers | 4 (waarvan 3 slaapkamers) |
| Aantal badkamers | 1 (en 1 apart toilet) |
| Energieverbruik | |
|---|---|
| Energielabel | C |
| CV ketel | |
|---|---|
| CV ketel | Intergas HR 107 |
| Warmtebron | Gas |
| Combiketel | Ja |
| Eigendom | Eigendom |
| Uitrusting | |
|---|---|
| Warm water | CV-ketel |
| Verwarmingssysteem | Centrale verwarming |
| Ventilatie methode | Natuurlijke ventilatie |
| Badkamervoorzieningen | Douche Wasmachineaansluiting Wastafel |
| Heeft een balkon | Ja |
| Vereniging van Eigenaren | |
|---|---|
| Ingeschreven bij de KvK | Ja |
| Jaarlijkse vergadering | Ja |
| Periodieke bijdrage | Ja |
| Reservefonds | Ja |
| Meer jaren onderhoudsplan | Ja |
| Onderhoudsverwachting | Ja |
| Opstal verzekering | Ja |
| Kadastrale gegevens | |
|---|---|
| Kadastrale aanduiding | Rotterdam AB 2532 |
| Perceeloppervlakte | 135 m² |
| Omvang | Appartementsrecht of complex |
| Eigendomsituatie | Eigen grond |
| Indexnummer | 3 |